11/17 (月) 15 2014
- カテゴリー:
等々力陸上競技場「新メインスタンド」について(第1弾)
2012シーズン終了後から開始された改築工事を経て、いよいよ2015年3月等々力陸上競技場の『新メインスタンド』が完成します!!“安全・安心・快適”なスタジアムを目指し、生まれ変わるメインスタンドをぜひお楽しみに!!今回は、新メインスタンドのご紹介第1弾として、新しい「座席」と「店舗」についてご紹介します。
新メインスタンド座席について
快適な試合観戦には、心地良い“シート”がカギ!!新メインスタンドの座席は全席ひじ掛け・カップホルダー付きとなります。また、座席でのすれ違いを計算したスタンド幅になっていますので、スタンドでの移動もスムーズです。
◇座席仕様
|
【全席共通】(一部バラエティシートを除きます) ◎跳ね上げ式座席を採用 →座席前の横移動がしやすいです!! →座席下への荷物の置き忘れを防ぎます!! →座面が汚れにくく清掃しやすいのでクリーンな座席を保ちます!! ◎全席にカップルホルダー・ひじ掛け・背もたれを設置 ◎樹脂製・弾力性のある中空タイプシートを採用 |
<一般席>ひじ掛けと座面を支える部分は『Fフレーム』を採用!!

※画像はイメージです。

※画像はイメージです。
<ハイグレード仕様シート>※プレミアムシート・SSS指定
|
【ハイグレード仕様シート 限定】 ◎ビニールレザー張り、座面・背もたれにはビニールレザー張りパットを装着 →“快適で高級感ある”シートを実現します!! |

下層中央部分のブラックカラーの座席がハイグレード仕様シートです。※画像はイメージです。

※画像はイメージです。
◇座席横幅と前後間隔
|
◎ゆとりある座席横幅と前後間隔を確保 →ゆったりと座りやすいシートを実現します!! →通路の移動を快適に!!かつ“一体感”を感じる前後間隔をキープします!! |

※画像はイメージです。
※イメージ図は下層スタンド。前後幅85cm
◇座席スペック一覧
| 座席仕様 | 座席 横幅 |
前後 間隔 |
|
|---|---|---|---|
| 上層 | 標準装備:カップホルダー/ひじ掛け/背もたれ 跳ね上げ式座席 |
50cm | 80cm |
| 下層【一般席】 | 標準装備:カップホルダー/ひじ掛け/背もたれ 跳ね上げ式座席 |
50cm | 85cm |
| 下層【ハイグレード仕様シート】※SSS指定 | 標準装備:カップホルダー/ひじ掛け/背もたれ 跳ね上げ式座席 ビニールレザー張り |
50cm | 85cm |
| 下層【ハイグレード仕様シート】※プレミアムシート | 標準装備:カップホルダー/ひじ掛け/背もたれ 跳ね上げ式座席 ビニールレザー張り |
50cm | 95cm または 120cm |
| ≪参考≫ サイドバックスタンド ※場所によって前後間隔が異なります。 |
固定式座席 FRP製 (カップホルダー/ひじ掛けの装備無し、背もたれは上層部のみあり) |
42cm | 2階:83cm 1階:80cm |
(※寸法は標準的なものであり、座席の位置により多少異なります。)
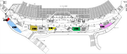
新メインスタンド店舗について
新メインスタンド完成により、6店舗が新しくオープンします。店舗4及び店舗5は、ホームゲーム時にグッズショップとして営業予定です。その他、具体的な店舗情報については決定次第お知らせいたしますので、お楽しみに!!

新メインスタンド3階平面図

今後の「新メインスタンド情報」のご紹介について
新メインスタンド情報は、随時フロンターレオフィシャルホームページでお伝えしていきます!!